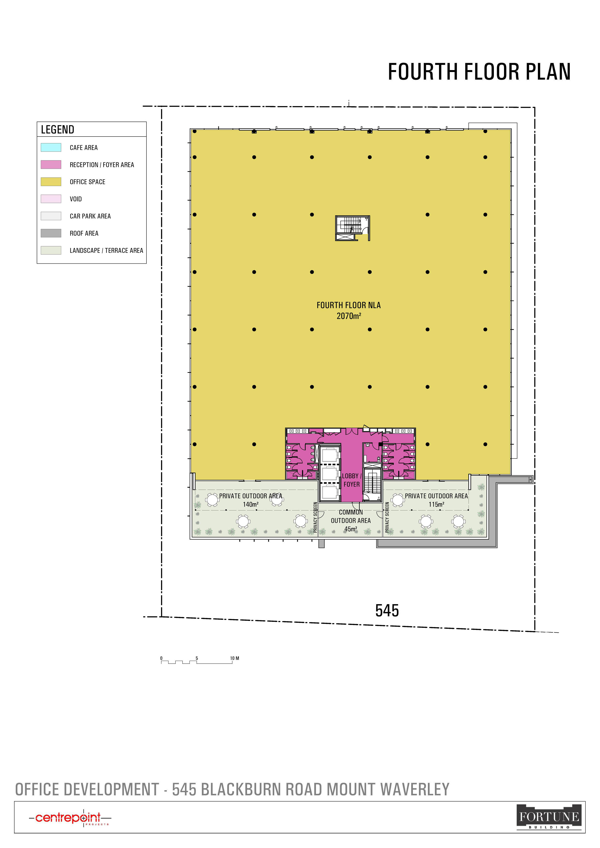
Top Floor

Floor Summary

  • Approximately 2,180 square metres
  • Magnificent views to city skyline and Dandenong Ranges
  • Large outdoor terrace areas of 140sqm, 115sqm and 45sqm
  • Excellent natural light to 4 sides
  • Sheltered verandas with automatic louvres