Office Fitout Sample

Single Floor Tenancy

Single Tenancy

Summary
  • NLA
  • Density
  • Locker Ratio
  • 2300m²
  • 1:10.6m²
  • 1:1
Workstation Type
  • Desk
  • Team
  • Focus
  • Total
  • 116
  • 80
  • 20
  • 216
Shared Space Type
  • Office
  • Meeting Room 4P
  • Meeting Room 8P
  • Meeting Room 16P
  • Boardroom 20P
  • Project
  • Touchdown
  • Collaboration Table
  • Collaboration Booth
  • Total
  • 9
  • 5
  • 2
  • 1
  • 1
  • 3
  • 2
  • 3
  • 3
  • 29
Other
  • Reception & Waiting
  • Hub
  • Utility
  • Nursing Room
  • Sick Room
  • Prayer Room
  • Reheat Kitchen
  • Comms
  • Storage
  • Total
  • 1
  • 1
  • 1
  • 1
  • 1
  • 1
  • 1
  • 1
  • 1
  • 9

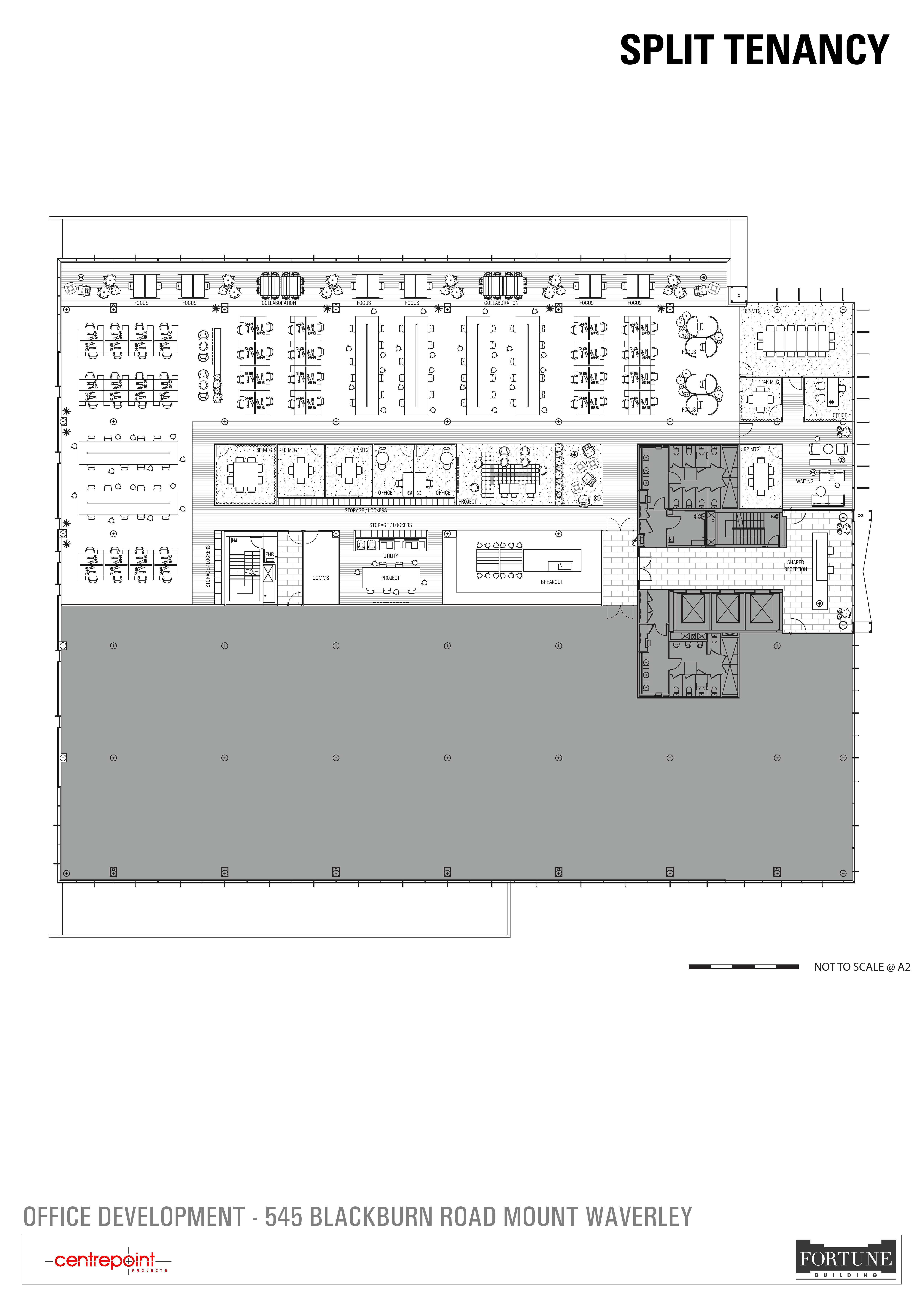
Split Floor Tenancy Option 1

Split Tenancy

Summary
  • NLA
  • Density
  • Locker Ratio
  • 1200m²
  • 1:10.0m²
  • 1:1
Workstation Type
  • Desk
  • Team
  • Focus
  • Total
  • 56
  • 48
  • 16
  • 120
Shared Space Type
  • Office
  • Meeting Room 4P
  • Meeting Room 6P
  • Meeting Room 8P
  • Meeting Room 16P
  • Project
  • Lounge
  • Collaboration Table
  • Total
  • 3
  • 3
  • 1
  • 1
  • 1
  • 1
  • 1
  • 2
  • 14
Other
  • Shared Reception
  • Waiting
  • Breakout
  • Utility
  • Comms
  • Total
  • 1
  • 1
  • 1
  • 1
  • 1
  • 5

Split Floor Tenancy Option 2

Split Tenancy

Summary
  • NLA
  • Density
  • Locker Ratio
  • 1080m²
  • 1:10.4m²
  • 1:1
Workstation Type
  • Desk
  • Focus
  • Total
  • 96
  • 8
  • 104
Shared Space Type
  • Office
  • Meeting Room 3P
  • Meeting Room 4P
  • Meeting Room 6P
  • Meeting Room 16P
  • Project
  • Lounge
  • Collaboration Booth
  • Total
  • 6
  • 1
  • 3
  • 1
  • 1
  • 1
  • 1
  • 3
  • 17
Other
  • Shared Reception
  • Waiting
  • Hub
  • Utility
  • Comms
  • Total
  • 1
  • 1
  • 1
  • 1
  • 1
  • 5