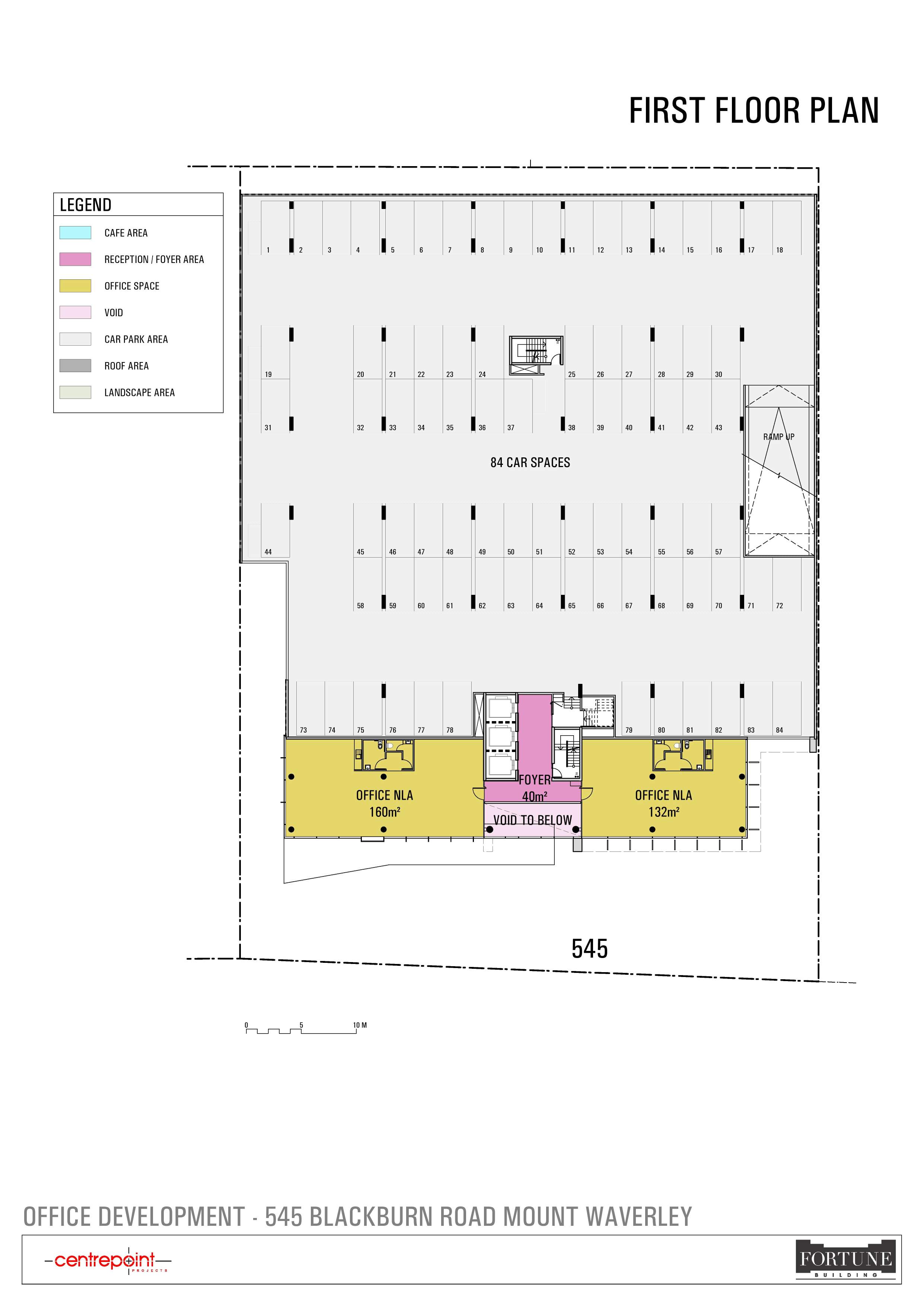
First Floor

Floor Summary

  • Two Executive office areas (130sqm + 160sqm)
  • Flexible fit out options
  • Direct car park entry to floor level
  • Impressive foyer entry area with polished stone floors, feature timber ceilings and the latest LED lighting

 

First Floor