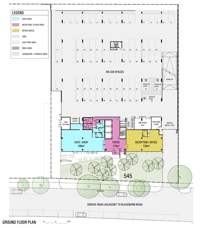
Ground Floor
Floor Summary
- Impressive 2 level foyer entry area with polished stone floors, feature timber ceilings and the latest LED lighting
- Café (124sqm) with own toilets and 100sqm Al Fresco outdoor area
- Reception Office with own facilities (130sqm)
- Separate staff facilities area with toilets and showers
- Secure car park access (66 spaces)
- Two driveways for separate egress
- Safe access from service lane (via Ferntree Gully Road)
- Locker and Storage Cages
